Woning onder voorbehoud in Maasmechelen
Onder voorbehoud Maasmechelen
TE KOOP:
PROJECTGROND BESTAANDE UIT TE RENOVEREN GEZINSWONING
+ BOUWGROND GESCHIKT VOOR MAXIMAAL 2 NIEUWBOUWWONINGEN
Deze projectgrond is gelegen in het gezellige dorp Oud-Vucht vlakbij het kanaal de Zuid-Willemsvaart. Een centrale maar ook zeer rustige, landelijke omgeving met enkel plaatselijk verkeer.
Het betreft
1. een te renoveren gezinswoning met een bewoonbare oppervlakte van 160m2:
- Ramen in PVC, dubbele beglazing
- CV op stookolie
- EPC: 493 kWh/m2 – label E
2. bouwgrond geschikt voor bijvoorbeeld:
- 1 halfopen gezinswoning (gevelbreedte +/- 7,5m)
OF
- 1 gesloten bebouwing (gevelbreedte +/- 5,67m) en
1 halfopen bebouwing (gevelbreedte: +/- 5,67m)
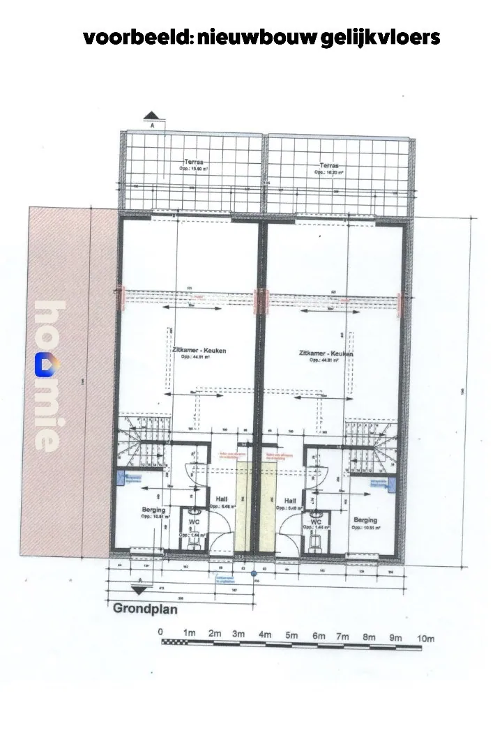
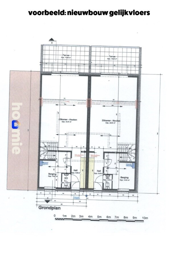
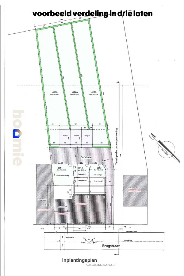
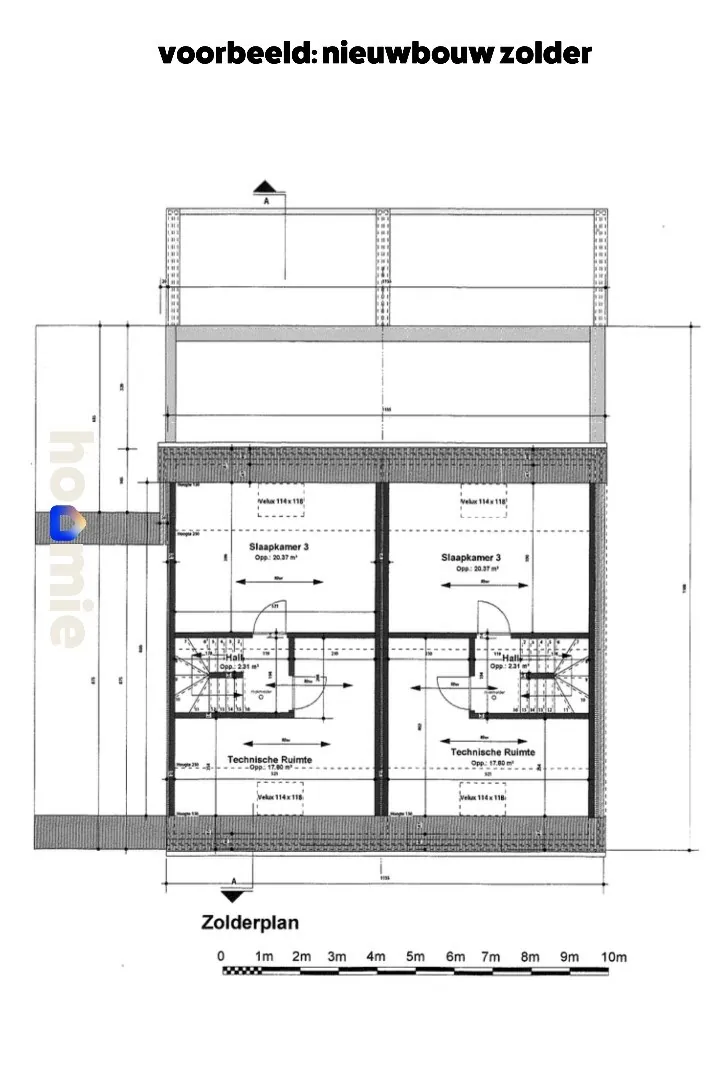
Voorbeeld uitwerking project:
Verdeling in 3 loten
- lot 1: bestaande gezinswoning (gesloten bebouwing)
- lot 2: nieuwbouw gezinswoning (gesloten bebouwing)
- lot 3: nieuwbouw gezinswoning (halfopen bebouwing)
Elk lot is voorzien van een garage + heeft toegang tot de tuin via servitudeweg.
Graag een bezoekje brengen? Contacteer ons sneller ... telefonisch 📱 of via Whatsapp 💬: 089 35 91 81. Via mail kan dit op info@hoomie.be. Tot snel! 👋
Renovatieplicht 🛠️: van toepassing:
Alle woningen en appartementen die vanaf 2023 zijn aangekocht met label E of F, moeten verplicht gerenoveerd worden naar label D of beter, binnen de 5 jaar na aankoop. 💡
- Stedenbouwkundige vergunning ontvangen: in aanvraag
- Stedenbouwkundige bestemming: in aanvraag
- Voorkooprecht: in aanvraag
- Dagvaarding voor inbreuk op de stedenbouwkundige voorschriften: in aanvraag
- Verkavelingsvergunning: in aanvraag
- Onroerend erfgoed: in aanvraag
Lees meer Verberg
PROJECTGROND BESTAANDE UIT TE RENOVEREN GEZINSWONING
+ BOUWGROND GESCHIKT VOOR MAXIMAAL 2 NIEUWBOUWWONINGEN
Deze projectgrond is gelegen in het gezellige dorp Oud-Vucht vlakbij het kanaal de Zuid-Willemsvaart. Een centrale maar ook zeer rustige, landelijke omgeving met enkel plaatselijk verkeer.
Het betreft
1. een te renoveren gezinswoning met een bewoonbare oppervlakte van 160m2:
- Ramen in PVC, dubbele beglazing
- CV op stookolie
- EPC: 493 kWh/m2 – label E
2. bouwgrond geschikt voor bijvoorbeeld:
- 1 halfopen gezinswoning (gevelbreedte +/- 7,5m)
OF
- 1 gesloten bebouwing (gevelbreedte +/- 5,67m) en
1 halfopen bebouwing (gevelbreedte: +/- 5,67m)
Voorbeeld uitwerking project:
Verdeling in 3 loten
- lot 1: bestaande gezinswoning (gesloten bebouwing)
- lot 2: nieuwbouw gezinswoning (gesloten bebouwing)
- lot 3: nieuwbouw gezinswoning (halfopen bebouwing)
Elk lot is voorzien van een garage + heeft toegang tot de tuin via servitudeweg.
Graag een bezoekje brengen? Contacteer ons sneller ... telefonisch 📱 of via Whatsapp 💬: 089 35 91 81. Via mail kan dit op info@hoomie.be. Tot snel! 👋
Renovatieplicht 🛠️: van toepassing:
Alle woningen en appartementen die vanaf 2023 zijn aangekocht met label E of F, moeten verplicht gerenoveerd worden naar label D of beter, binnen de 5 jaar na aankoop. 💡
- Stedenbouwkundige vergunning ontvangen: in aanvraag
- Stedenbouwkundige bestemming: in aanvraag
- Voorkooprecht: in aanvraag
- Dagvaarding voor inbreuk op de stedenbouwkundige voorschriften: in aanvraag
- Verkavelingsvergunning: in aanvraag
- Onroerend erfgoed: in aanvraag
Lees meer Verberg